Plaza Ágora 25D
About the property
Completely remodeled premises, specially adapted to welcome Smart Fit, a prestigious chain of gyms that arrives to Plaza Ágora to offer its visitors a wide portfolio of services oriented to the “fitness” concept, focused on the well-being of the body and mind.
Description
Property currently occupied by Smart Fit, one of the largest gym chains in Latin America. Located on the top floor of the plaza, this facility houses a top-notch gym for the enjoyment of all residents of the Chanis neighborhood and its surroundings. Its opening represents a new effort by FCA Group to renovate Plaza Ágora Chanis.
Fully Renovated Property
The property was fully renovated by FCA to meet the demanding requirements of Smart Fit.
Convenient Access Points
The upper floor of Plaza Ágora has two entrances, one for pedestrians and the other for vehicles via a ramp large enough to accommodate cars and medium-sized cargo vehicles. The upper floor has more than 60 parking spaces.
Characteristics
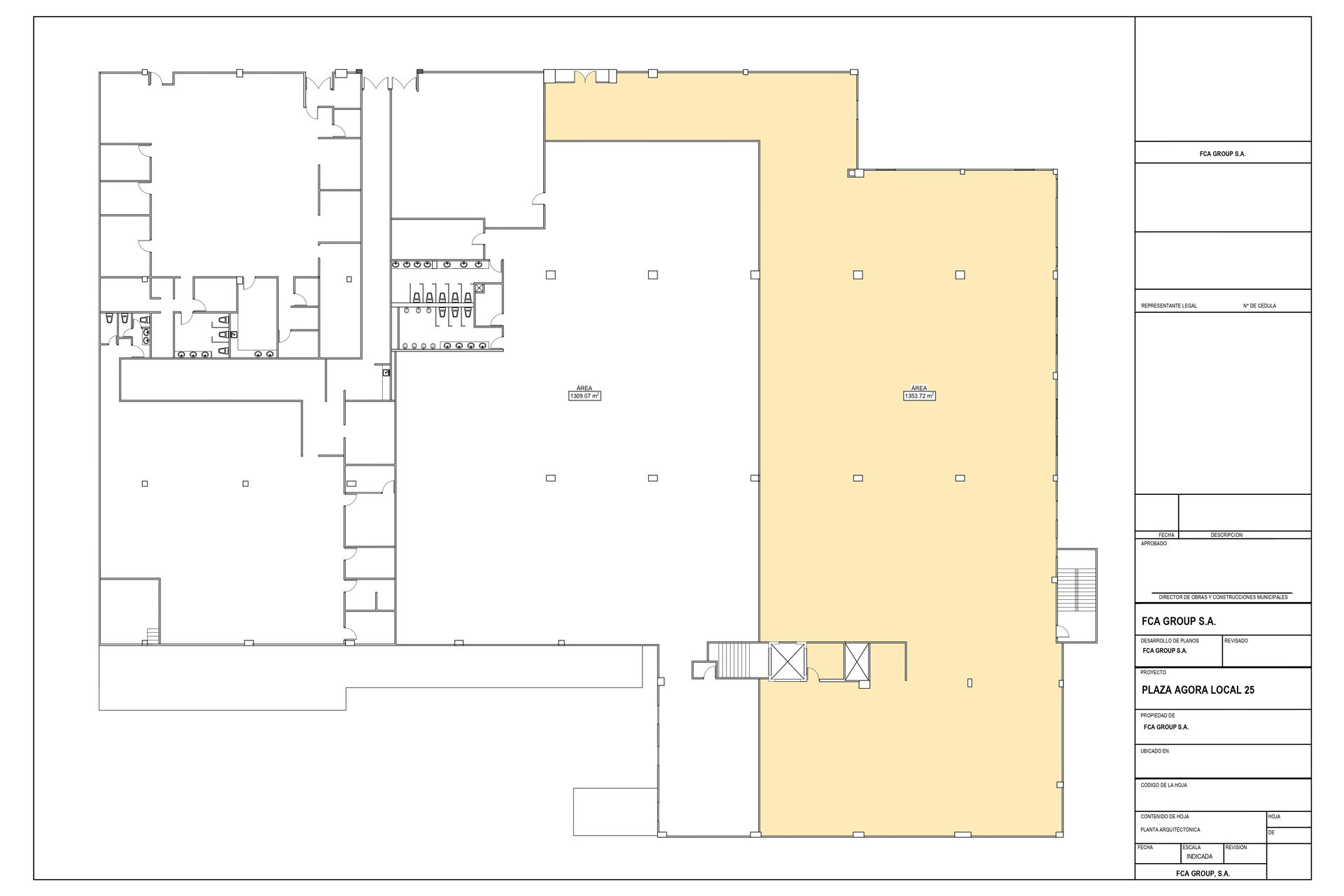
-  Area1,354 sqm 
-  Architectural Floor Plans
Our Properties
Plaza Agora 17
CHANIS
Plaza Agora 8
CHANIS
Plaza Agora 9
CHANIS
Plaza Agora 25A
CHANIS
Plaza Agora 25B
CHANIS
Plaza Agora 25C
CHANIS
Plaza Agora 25D
CHANIS
 
  
 

